
- …
- …
CONJUNTO TURÍSTICO DA QUINTA DO PAÚL DE FORA
Fase Estudo Prévio
Autor Arq. Nuno Barcelos, Arq. Susana Araújo e Arq. João Ceregeiro/ Mackenzie & Erbert
Cliente Particular
Local Paúl de Fora, Lagos
Data 2014
ORTOFOTO DO CONJUNTO TURÍSTICO

PLANTA DO CONJUNTO TURÍSTICO

IMPLANTAÇÃO DO EDIFICADO

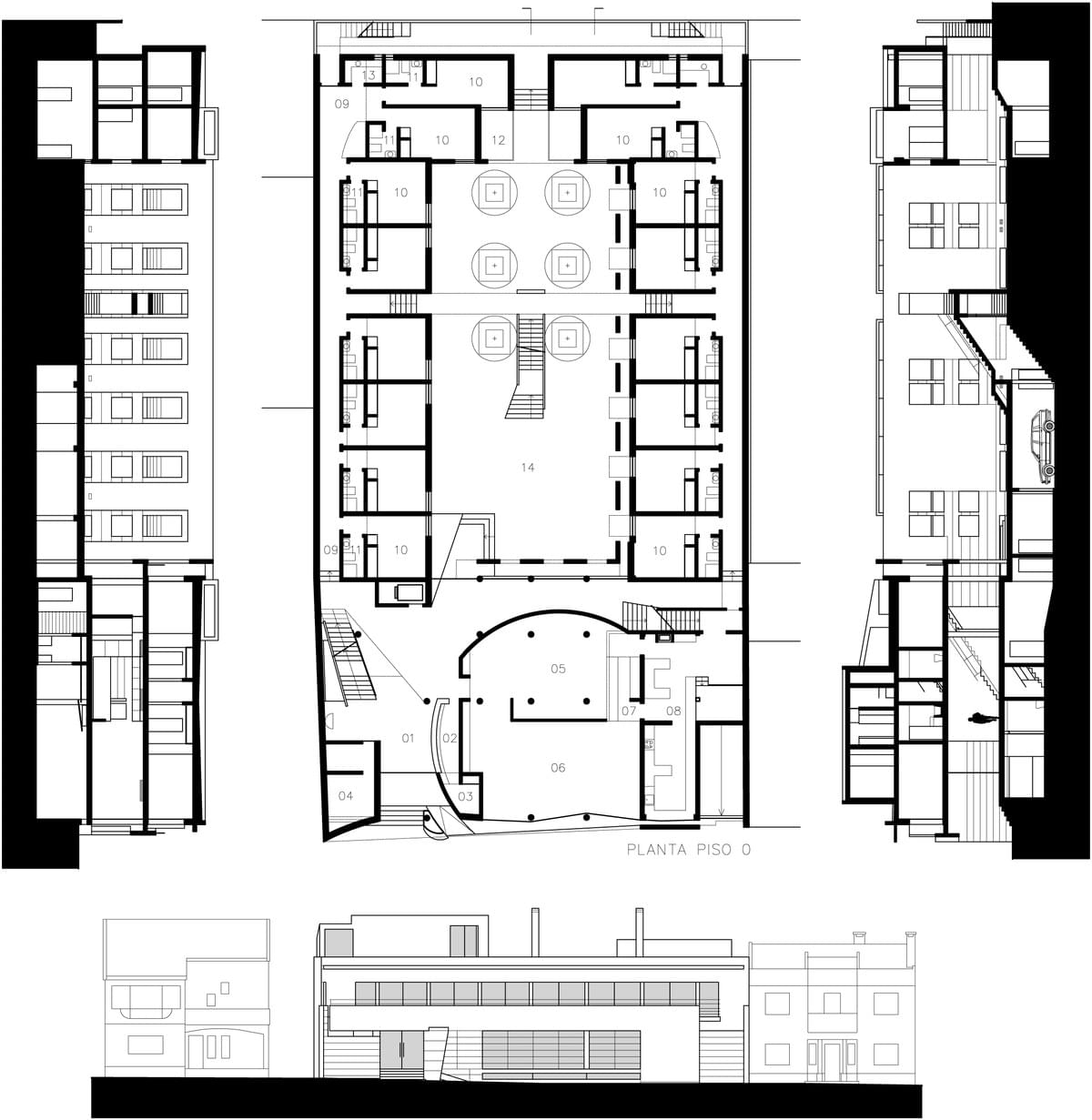
ESTABELECIMENTO HOTELEIRO
Fase Estudo Prévio
Autor Arq. Nuno Barcelos e Arq. Susana Araújo
Cliente Particular
Local Carnaxide, Oeiras
Data 2012

PLANTA DO PISO 0
112 Unidades de alojamento
Área do terreno: 6.120,00 m2
Área de construção piso 0: 1.332,00 m2

PLANTA DO PISO 1
112 Unidades de alojamento
Área do terreno: 6.120,00 m2
Área de construção piso tipo sem varandas: 1.393,00 m2
Área de construção piso tipo com varandas: 1.503,00 m2

PLANTA DO PISO TIPO
112 Unidades de alojamento
Área do terreno: 6.120,00 m2
Área de construção piso tipo sem varandas: 839,00 m2
Área de construção piso tipo com varandas: 950,00 m2

ALÇADO PRINCIPAL

ALÇADO LATERAL ESQUERDO

ALÇADO POSTERIOR

ALÇADO LATERAL DIREITO

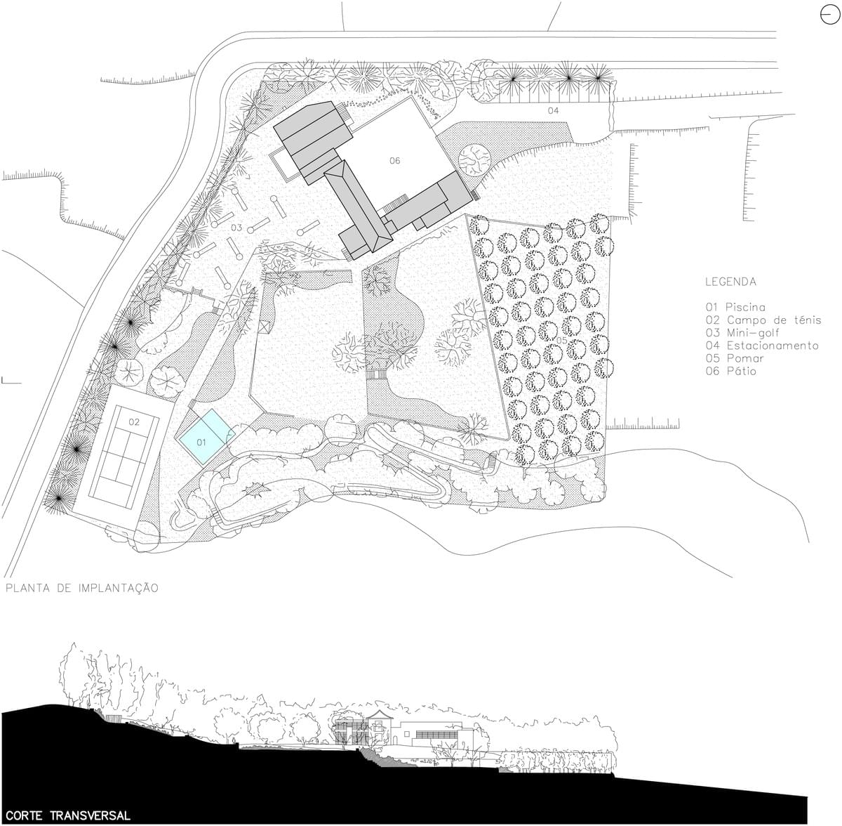
CONJUNTO TURÍSTICO HERDADE VALE DA FONTE
Fase Pedido de Informação Prévia Aprovado 1998 / 2011
Fase Estudo Prévio 2022
Autor 1998 - Arq. Nuno Barcelos, Arq. Cândido Chuva Gomes, Arq. José Luís Ribeiro e Arq. João Ceregeiro
Autor 2011 - Arq. Nuno Barcelos, Arq. José Luís Ribeiro e Arq. João Ceregeiro/ Mackenzie & Erbert
Autor 2022 - Arq. Nuno Barcelos, Arq. Rodrigo Pacheco e Arq. João Ceregeiro
Cliente Herdade Vale da Fonte SA
Local Ferraria, Sesimbra
Data 1998 / 2011 / 2022
CENTRO HÍPICO - 1998

GOLF RESORT - 2011

COMPLEXO DESPORTIVO - 2022

COMPLEXO DESPORTIVO - 2022

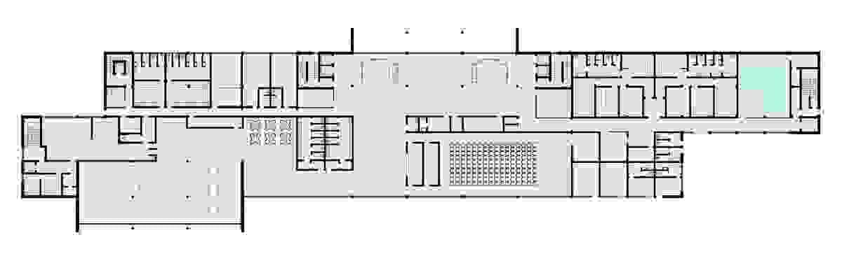
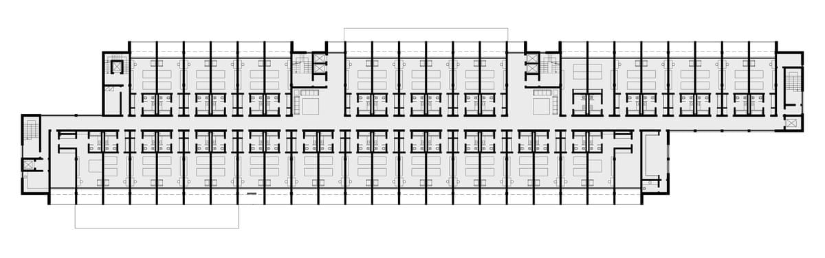
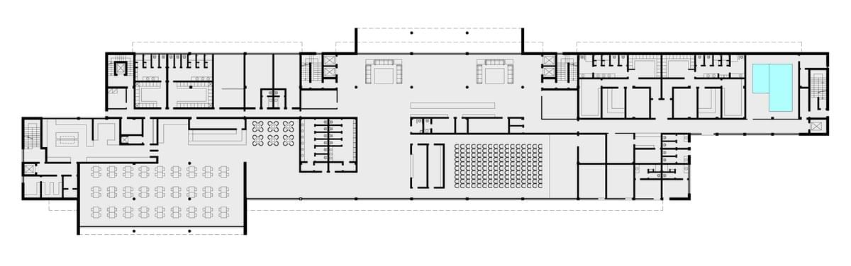
HOTEL HERDADE VALE DA FONTE
Fase Estudo Prévio
Autor Arq. Nuno Barcelos, Arq. José Luís Ribeiro e Arq. Susana Araújo
Cliente Herdade Vale da Fonte SA
Local Ferraria, Sesimbra
Data 2011
IMAGEM 3D

PLANTA DO PISO 1 E PISO 2

PLANTA DO PISO 0

ALÇADO TARDOZ

ALÇADO PRINCIPAL

CONJUNTO TURÍSTICO VÁRZEA DA LAGOA
Fase Pedido de Informação Prévia Aprovado
Autor Arq. Nuno Barcelos, Arq. José Luís Ribeiro e Arq. João Ceregeiro
Cliente Particular
Local Ferraria, Sesimbra
Data 1998
PLANTA DO CONJUNTO TURÍSTICO

TURISMO DE HABITAÇÃO QUINTA DA GLÓRIA
Fase Licenciamento
Autor Arq. Nuno Barcelos, Arq. José Luís Ribeiro e Arq. João Ceregeiro
Cliente Particular
Local Quinta da Glória, Palmela
Data 1990


ALBERGARIA CASTANHEIRA
Fase Licenciamento e Projecto Execução
Autor Arq. Nuno Barcelos e Arq. José Luís Ribeiro
Cliente Particular
Local Ceiceira, Monchique
Data 1990



ALBERGARIA PÁTIO DAS LARANJEIRAS
Fase Licenciamento e Projecto Execução
Autor Arq. José Luís Ribeiro e Arq. Nuno Barcelos
Cliente Particular
Local Ponte Sôr, Portalegre
Data 1988



ALBERGARIA PÉ DE CRUZ
Fase Licenciamento
Autor Arq. Nuno Barcelos e Arq. José Luís Ribeiro
Cliente Particular
Local Sítio de Seixas, Monchique
Data 1987

LOCALIZAÇÃO
Rua Antero de Figueiredo
4E, 1Esq. 1700-041 Lisboa
CONTACTOS
+351 917250387
barcelos.nuno@gmail.com
© 2023































