
- …
- …
VILA VERDE
Fase Estudo Prévio
Autor Arq. Nuno Barcelos e Arq. Rodrigo Pacheco
Cliente Particular
Local Vila Verde, Sintra
Data 2020
CASAL ESPADANINHA
Fase Estudo Prévio
Autor Arq. Nuno Barcelos e Arq. Rodrigo Pacheco
Cliente Particular
Local São Julião do Tojal, Loures
Data 2019
RESTELO
Fase Construída
Autor Arq. Nuno Barcelos e Arq. José Luís Ribeiro
Cliente Particular
Local Restelo, Lisboa
Data 2018
CASAL DA COUTANA
Fase Licenciamento / Projecto Execução
Autor Arq. Nuno Barcelos
Cliente Particular
Local Casal da Coutana - Venda do Pinheiro, Mafra
Data 2017
MONTE DO TRIGO
Fase Construída
Autor Arq. José Luís Ribeiro e Arq. Nuno Barcelos
Cliente Particular
Local Feiteira - Monte do Trigo, Proença-A-Nova
Data 2016
MONTES DA SENHORA
Fase Construída
Autor Arq. José Luís Ribeiro e Arq. Nuno Barcelos
Cliente Particular
Local Montes da Senhora, Proença-A-Nova
Data 2010
SANTA IRIA DE AZÓIA
Fase Construída
Autor Arq. Nuno Barcelos e Arq. José Luís Ribeiro
Cliente Particular
Local Santa Iria de Azóia, Loures
Data 2008
VÁRZEA DE SINTRA
Fase Construída
Autor Arq. Nuno Barcelos e Arq. José Luís Ribeiro
Cliente Particular
Local Várzea de Sintra, Sintra
Data 2008
VILAMOURA
Fase Licenciamento
Autor Arq. Nuno Barcelos
Cliente Particular
Local Vilamoura, Loulé
Data 1998PERSPECTIVA ALÇADO PRINCIPAL

PERSPECTIVA ALÇADO TARDOZ

PLANTA DO PISO 0 E PLANTA DO PISO 1

PERSPECTIVA INTERIOR

QUINTA DA MAÇÃ
Fase Construída
Autor Arq. Nuno Barcelos e Arq. José Luís Ribeiro
Cliente Particular
Local Quinta de Santo António - Maçã, Sesimbra
Data 1998
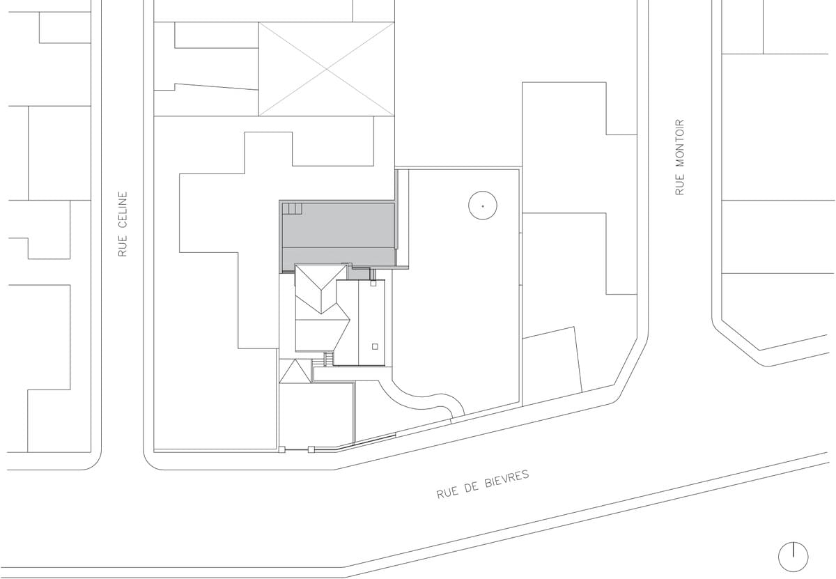
CLAMART PARIS
Fase Construída
Autor Arq. Nuno Barcelos
Cliente Particular
Local Clamart, Paris
Data 1997IMPLANTAÇÃO

PERSPECTIVA DO LOTE

PERSPECTIVA DO ALÇADO TARDOZ

PLANTA DO PISO 1

PLANTA DO PISO 0

CORTE

BARRANTES
Fase Construída
Autor Arq. Nuno Barcelos e Arq. José Luís Ribeiro
Cliente Particular
Local Barrantes, Caldas da Rainha
Data 1997
CHATILLON PARIS
Fase Licenciamento
Autor Arq. Nuno Barcelos
Cliente Particular
Local Chatillon, Paris
Data 1996PERSPECTIVA DO ALÇADO TARDOZ


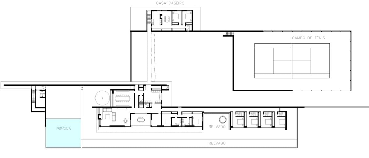
MONTE DO PINHAL DO MEIO
Fase Construída
Autor Arq. Nuno Barcelos e Arq. José Luís Ribeiro
Cliente Particular
Local Ferraria, Sesimbra
Data 1994FOTOGRAFIA

FOTOGRAFIA

FOTOGRAFIA

PLANTA PISO 0

ALÇADO TARDOZ

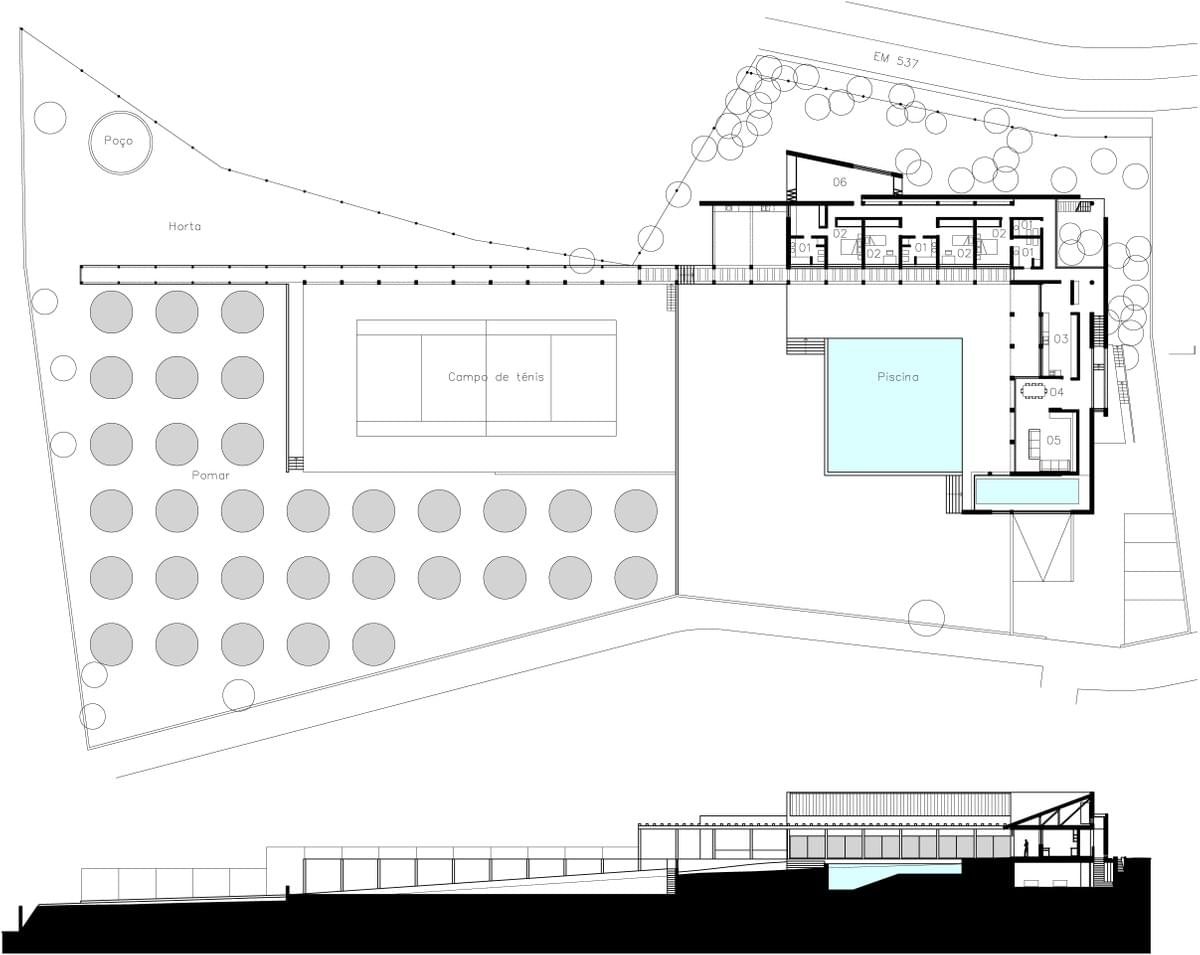
ERVIDEIRA
Fase Licenciamento / Projecto Execução
Autor Arq. Nuno Barcelos
Cliente Particular
Local Ervideira, Mafra
Data 1992MAQUETE

IMPLANTAÇÃO


LOCALIZAÇÃO
Rua Antero de Figueiredo
4E, 1Esq. 1700-041 Lisboa
CONTACTOS
+351 917250387
barcelos.nuno@gmail.com
© 2023





















